Description
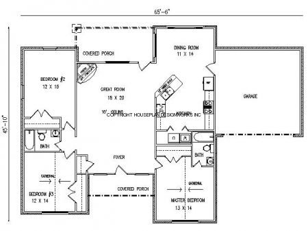
This house plan features a large great room with a fireplace and 10 foot ceilings. The front bedrooms have circle top windows and cathedral ceilings. The covered back porch will make a great sitting area and can easily convert into a sun room.
This plan is drawn with a brick and block foundation. Please allow 2-3 additional days for delivery if ordered with a different foundation. This plan is also designed to be stick built. Call for a quote if you want to customize this plan.
Features
Total sq footage
:
2225
